制造业知识分享、信息发布平台-兴盛制造网 Email: 206027815@qq.com

双面组件安装要点全解

分类: 光伏太阳能 浏览量: 留言数: 5791

首先,我们先来了解一下什么是双面组件,双面组件最直观的就是组件的背面也能发电,它主要是利用了电池片领域的技术,把原先不透光的一整块背电极,做成像正面一样透光的栅线,然后再通过一定的参杂手段,把背部也制成PN结,从而保证了反射光和散射光能够正常摄取。

双面组件一般采用的是双玻的形式,当然也有使用透明背板的,可以降低组件的重量,根据客户需求可以对是否加边框以及接线盒的电缆长度做定制。

1.png

双面组件的背面也能发电,根据不同的反射环境增益也有所不同;背板一般采用玻璃材质,即双面双玻,也有透明背板材质,可以减轻组件整体重量;对安装支架及组件间串接线缆有特殊要求。

2.png

双面组件与逆变器配置关系 组件增益

3.png

我们来看看双面组件的电参,上面这个表与一般组件没什么区别,都是在标准测试环境下的基本性能参数,不同的是下面这张增益表,不难发现这款组件的背部增益在5%~25%之间,那目前双面组件的价格一般是在正面功率的基础上增加5分钱的成本,相当于上浮了2%~3%左右,所以还是相当划算的。

双面组件背部的增益对安装环境也提出了相应的要求,下面这张不同安装环境的增益,相比于草地、水泥、黄沙等地面材质,地面刷白漆的增益效果最好。

4.png

不同安装环境增益

双面组件的增益主要来自于背部电流增益,目前组件正面峰值电流一般不超过11A,当背面功率增益达到20%时,峰值电流一般不超过12.5A,这就对逆变器的耐流能力提出了更高的要求。

逆变器选型

双面组件发电量较常规产品显著提升,系统设计上需适度降低容配比(DC/AC),希望逆变器具有短时极强的过载能力。

双面组件的功率增益基本来自于背面受光带来的电流增益,Imp可能超过11A,汇流箱与逆变器的最大电流设计应提高。

考虑到有背部增益,我们在设计方面需要适量降低系统的直流超配,同时逆变器需要有可靠的短时的过载能力,固德威在户用机型SDT G2 以及SMT系列都标配了12.5A的直流耐流性能,适配配目前大多数双面组件。

5.png

我们在工商业机型上也做出了相应的变化,MT机型的50、80kW都推出了BF系列,适配目前市面上的大功率双面组件,80kW的MPPT最大输入电流是44A,每路MPPT可以接3路组串,每路进线的电流就是14.6A,同样50kW的机器每路进线电流可以达到15A。

6.png

针对地面项目,我们即将推出的100kW以上的HT系列的大机也是做了相应的适配,以100kW为例,每路MPPT最大电流支持28A,每路组串接入则可支持14A的电流输入。

7.png

双面组件安装要点

1、组件接线盒位置、线长、组串接线方式

2、压块位置、大小

3、组件支架不遮挡背面电池片

4、组件高度与倾角

5、组串接线优化

8.png

结合我们正在进行的新工厂的屋顶项目,列举了5个方面,介绍一下在安装过程中的一些注意事项。

接线盒位置、线长、组串接线方式

9.png

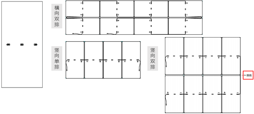
首先是接线盒在组件中间位置的双面组件,这种形式多为半片的组件,在敷设形式上可分为横向双排、横向单排、竖向单排以及竖向双排。

这里主要列举了其中3个,需要注意的是,在横向排布中上下组件方向一致,相邻组件方向相反,这种方式要求组件电缆长度要在1.4~1.5m左右。

竖向单排组件电缆就可以短一些,竖向双排会在上下组件连接时增加一根跳线,在前期估算是不要把它遗漏了。

10.png

这就是我们固德威新工厂刚刚装完的双面组件,组件间的接线需要尽量避开背面电池片,避免遮挡。

11.png

这种是一般的双面组件,接线盒在组件的末端,单排布置一般没什么问题,在双排布置中,横向双排的组件方向均一致,线长需要保证在1.5m左右,竖向双排与单排电缆较短,双排需要注意上下排组件是头对头的形式放置。

12.png

当然还有的双面组件接线盒的位置在上下头,这种组件敷设的形式与前面类似,不同的形式需要注意一下组件的方向,这边不做赘述。

压块位置、大小

压块应用在光伏项目上由来已久,对于有框双面的安装可以直接参考常规组件进行,我这边主要是针对无框双玻的压块安装。

13.png

从图上我们不难发现,60片电池的组件一般建议压住组件的4个点,72片电池的组件一般建议压6个点,具体位置根据不同尺寸的组件会略有不同,压块的尺寸也较常规的尺寸要长一些,一般要求在150mm左右。

跟踪式支架需要注意的是转轴尽量在组件与组件之间,减少背部遮挡。

组件支架不遮挡背面电池片

14.jpg

在支架结构设计时,支架构件不能横穿组件电池片区域,只能在组件边沿设置斜梁、檩条及连接辅件,同时逆变器安装位置也不能在组串背后,而应该安装在组串侧面,避免影响到组件背面的反射光。

15.png

采用双面组件的项目在设计支架时需要考虑到背部遮挡的问题,支架构件不建议横穿组件背部电池片区域,需要尽量沿边缘设置。同时,逆变器也不能挂在组串背后,避免遮挡。

组件高度与倾角

16.png

根据模拟,反射率越大,离地高度越高,背面增益效果越明显,当组件离地高度在1m以上时,背部接收到的辐照度趋于稳定。建议组件离地高度根据实际环境可选择在0.3-1m之间。

常规形式安装时,建议采用当地最佳倾角。

除了我们一开始谈到的不同材质的地面会影响背部增益,不同的离地高度对应的增益效果也不尽相同,这幅图就反映了双面组件背部增益与组件高度的关系,高度越高对应的增益上升幅度是放缓的,结合基础成本考虑,我们一般建议组件高度不要超过1m,可以在0.3~1m范围内来按需选择。

组件接线优化

最后我们来看看组串的优化,对于标准方阵而言,一般的接线方式无外乎就是下面的这两张图,第一种上下串联,第二种上下分开串联。

17.png

对于一个典型的双排的光伏方阵而言,下面一行的距地高度和上面一行的距地高度是远远不同的(尤其是在组件竖向布置时),所以他们所接收到的反射辐射量也是不尽相同的。

从直观上我们也可以明显感觉到,下面一行组件的背面空间会暗一些。所以显然下面一行组件的电流也会略低于上面一行组件。

而此时,在进行组串接线时,如果选择方式1,受下面一行组件低电流的影响,上面一行组件的电流也会降低,从而使得整体的输出功率有所降低。

而如果采用方式2,此时上下两行单独成串,互不影响,充分的利用的双面组件的性能,提高了发电量。

那细心的小伙伴就会发现结合刚才的组件离地高度越高,增益也越大的结论,上下排组件的增益效果是不同的,上排的组件增益相对较高,下排的组件增益相对较低,那为了降低组串的失配,我们还是建议有条件的选择方式2的组串形式,同时将上下两串接入逆变器的不同MPPT下,这就是目前双面组件的最优的接线方式。

本文地址: https://www.xsyiq.com/5791.html
网站内容如侵犯了您的权益,请联系我们删除。

标签: 上一篇: 下一篇: